Real Estate Listings for Cocoa Beach, Satellite Beach and Brevard County, Florida

Alyssa Boyd

Greater Brevard Area, Waterfront Properties & Cocoa Beach

Contact Alyssa Boyd, Your Local Real Estate Broker: 321-591-7585

Search Properties

Property Search

Melbourne, Fl

Price: $329,900.00

1512 Vista Lake Circle Circle

Melbourne, Fl 32904

1,510 Sq. Ft.

3 Bedrooms

2.00 Bathrooms


RESIDENTIAL - MLS #1054539 - Built in 2000
Added on Thursday, August 14th, 2025 at 12:00am


About This Property:

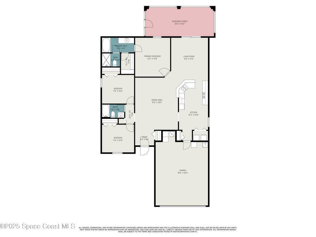
Priced to sell! Gated West Melbourne community minutes to US-192, I-95, and only 15 min to Melbourne Beach. Move-in ready with NEW flooring, fresh paint, and roof (2020). Bright open layout, vaulted ceilings, spacious primary suite with walk-in closet and garden tub. Original kitchen ready for your personal touch. Low HOA under $40/month. Community pool and lake. Seller offering credit toward closing costs. Schedule your private tour today!

Subdivision

Meadow Lake Subdivision Phase 1

Parking

Attached, Garage, Garage Door Opener

Split Floorplan

Pool

No

Pool Description

Waterfront

No

Water Type

none

Construction

Block, Concrete, Stucco

Floor

Tile, Vinyl

Exterior Finish

Roof Type

Shingle

Fireplace

Furnishings

Unfurnished

Home Warranty

Utilities

Cable Connected, Electricity Connected, Natural Gas Available, Sewer Connected, Water Connected

Appliances

Dishwasher, Dryer, Electric Range, Electric Water Heater, Gas Water Heater, Refrigerator, Washer

County

Brevard

Gated Community

HOA

HOA Dues

$0.00

Tax Year

0

Tax Amount

$1,164.58

55+ Community

Home View

Additional Rooms

Bathroom 1, Bedroom 1, Bedroom 2, Den, Dining Room, Kitchen, Other Room, Primary Bathroom, Primary Bedroom

Short Sale

Home Style

Interior Features

Breakfast Bar, Breakfast Nook, Ceiling Fan(s), Open Floorplan, Pantry, Primary Bathroom -Tub with Separate Shower, Vaulted Ceiling(s), Walk-In Closet(s)

Exterior Features

Property Details - This listing is courtesy of ZOOM Realty Group LLC.