Real Estate Listings for Cocoa Beach, Satellite Beach and Brevard County, Florida

Alyssa Boyd

Greater Brevard Area, Waterfront Properties & Cocoa Beach

Contact Alyssa Boyd, Your Local Real Estate Broker: 321-591-7585

Search Properties

Property Search

Rockledge, Fl

Price: $147,400.00

1515 Huntington Lane Unit #227

Rockledge, Fl 32955

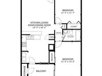
830 Sq. Ft.

2 Bedrooms

1.00 Bathrooms


RESIDENTIAL - MLS #1050964 - Built in 1983
Added on Sunday, July 6th, 2025 at 12:00am


About This Property:

Welcome to this beautifully maintained 2-bedroom, 1-bath second-floor unit, perfectly located in a desirable & well maintained condo community. This fully updated unit features granite countertops in the kitchen, updated plumbing, 2021 HVAC, and Brand New Windows. Tastefully updated with a large soaking tub/shower combo in the bathroom offers a perfect place to unwind, and the in-unit washer and dryer on pedestals make laundry a breeze. Step outside onto your private screened porch, complete with a convenient storage closet, ideal for enjoying the outdoors in comfort.With an accepted offer, the seller will pay for the property taxes for 2026. Don't miss this opportunity!Enjoy a wide array of community amenities, including a pool, clubhouse, secure mailboxes, shuffleboard, and tennis courts--all surrounded by buildings that are regularly cleaned & carefully maintained. Your covered parking space is conveniently located right across from the unit.

Subdivision

Regency Pines Condo Ph I

Parking

Additional Parking, Assigned, Covered, Unassigned

Split Floorplan

Pool

No

Pool Description

Waterfront

No

Water Type

none

Construction

Block, Concrete

Floor

Laminate, Vinyl

Exterior Finish

Roof Type

Fireplace

Furnishings

Partially

Home Warranty

Utilities

Cable Available, Cable Connected, Electricity Connected, Sewer Connected, Water Connected

Appliances

Dishwasher, Dryer, Electric Range, Microwave, Other, Refrigerator, Washer

County

Brevard

Gated Community

HOA

HOA Dues

$0.00

Tax Year

2023

Tax Amount

$1,973.85

55+ Community

Home View

Other

Additional Rooms

Short Sale

Home Style

Traditional

Interior Features

Breakfast Bar, Ceiling Fan(s), Eat-in Kitchen, Primary Bathroom - Tub with Shower

Exterior Features

Balcony

Property Details - This listing is courtesy of One Sotheby's International.